
项目信息
PROJECT INFORMATION
地址/ 时光悦酩
城市/ 中国 杭州
户型/ 三室两厅
面积/ 128㎡
风格/ 意式极简
设计施工/ 浙江南鸿装饰
作品前言
ABOUT HOME
本案空间铺展干净的白色底质,大量棕色软装及木作增添温暖感。
格局上做经典LDK设计,将厨房完全打开,形成开阔明亮的公共区域,动线自如,家庭成员间的互动也可随时展开。
空间内冷暖色调和谐搭配,展现高级而儒雅的气质。


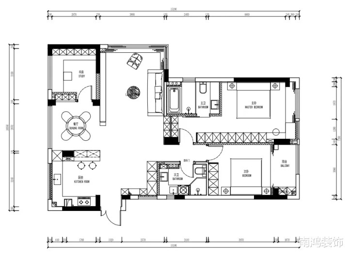
户型方案
LAYOUT DESIGN

实景呈现
CASE APPRECIATION
No.1
玄关


温润的木色塑造了入户的主视觉,端景部分引入时髦的斯卡帕元素和镂空手法,木与黑交织出深邃而温暖的形态,为整个家的风格定调。
No.2
客厅

客厅低饱和度的配色,释放着生活的呼吸感与轻盈韵律。
沙发、茶几、地毯稳健锚定视觉中心,自然光洒拥入室内,柔和铺陈每一寸角落。

结构上的清晰线条,为空间勾勒出宁静的轮廓。
设计的意义,不仅在于交付出一个“好看”的空间,更在于为居者提供一种可呼吸、可感受的日常氛围。


克制的材质选择与协调的色彩搭配,让空间回归舒适与功能的本质。
电视背景墙以未做满的形式留出一定视觉余裕,圆润转角增添柔润。
浅木饰面的质朴肌理与素雅色调,化解了储物柜的体量感,兼具实用与轻盈之美。
No.3
餐厅

客餐厅在色调上保持了低饱和度的统一性,视觉连贯,空间更显整体。
无需跳跃的亮色,细微的明暗变化就已足够营造宁静舒缓的起居氛围。


光感丰沛的餐厅空间,自带着无限的通透与活力。
圆桌围拢家人的情感互动,烘托亲密无间的氛围。一侧做电器高柜,既完善餐厨功能,又维持了立面的整洁利落。

真正的好空间懂得在晨昏日常中与人心对话——晨早时光亮匀透,傍晚时沉静绵长,灯光与自然交织出动人的韵律,无声抚慰着落班归家的主人。
No.4
厨房

餐厨之间,设计师利用原有的承重柱,延伸出岛台兼吧台。
石材台面以美丽的纹理勾勒低奢质感,明亮的光线漫进室内,使区域更显敞阔大气。

开放式厨房选用深灰色橱柜,深色调赋予空间沉稳的高级感,也更耐脏好打理。嵌入式厨电保持立面整洁,延续空间的秩序感。
No.5
卧室

主卧内,棕色的床品、床头柜,同背景墙的木饰面、格栅彼此呼应,整体色调沉稳而协调,睡卧氛围格外温润宁静。



通过材质本身的组合与变化,卧室背景墙的细节质感也得到了提升。
飘窗设计为卧榻休闲区——午后小憩、静心阅读,亦或与家人品茶闲谈,这里皆是理想的一隅。
同时,卧榻向床尾空间自然延伸出女主人的梳妆区,结构的流畅转折,以一气呵成的整体性,带来视觉的绝对舒适。
No.6
书房

书房定位为一处专属电竞游戏空间,鲜明的灯带线条嵌于柜子里外与桌沿,幽蓝、幻紫的光色,营造科技感十足的氛围。
END
天金策略提示:文章来自网络,不代表本站观点。